ID CP656164

Teren intravilan pentru locuinte individuale

Această proprietate nu mai este activă,
te invităm să vizualizezi proprietăți similare

ID CP656164

297,430 €

Teren de 4,249 mp de vânzare
Torontalului, Timisoara
4,249 mp

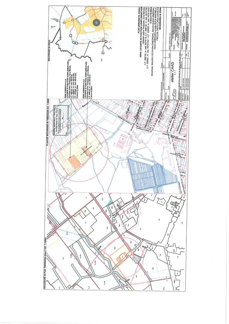
Terenul intravilan pentru locuinte individuale este situat in zona Mehala, cu acces de pe strada Grigore Alexandrescu.

Disponibile 7 parcele cu suprafete de 601-608mp, cu frontul de 18ml, se vand doar impreuna.

PUZ aprobat pentru locuinte cu regim mic de inaltime S+P+E+M/Er, sunt utilitati in zona ( se preia planul de actiune al PUZ-ului).

Citește mai mult

  • Tip teren
    Construcții
  • Suprafață teren
    4,249 mp
  • Front stradal
    18.0 m
  • Număr fronturi stradale
    1
  • Deschidere la
    Șosea
  • Clasificare
    Intravilan
  • Valoare incidență
    77.78
  • Disponibilitate
    Imediat
  • CUT
    0.9
  • POT (%)
    35.0

Facilități

Acces auto
Iluminat stradal
Mijloace de transport în comun
Străzi pietruite
Utilități în zonă
Necesare:

Site-ul nu poate funcționa corect fără aceste cookie-uri. Vezi cookie-urile

Statistică:

Strângem statistici anonime despre voi, vizitatorii unici, pentru a vă îmbunătăți experiența dumneavoastră. Vezi cookie-urile

Marketing:

Pentru a ne promova mai eficient serviciile noastre, folosim cookies pentru a vă identifica și a vă oferi proprietăți și servicii personalizate. Vezi cookie-urile

Acest site folosește cookies, află detalii. Alege ce tipuri de cookies dorești să permitem: