ID CP1628822

PUZ integral-zona Mehala

ID CP1628822

1,810,000 € + 21% TVA

Teren de 26,800 mp de vânzare
Mehala, Timisoara
26,800 mp

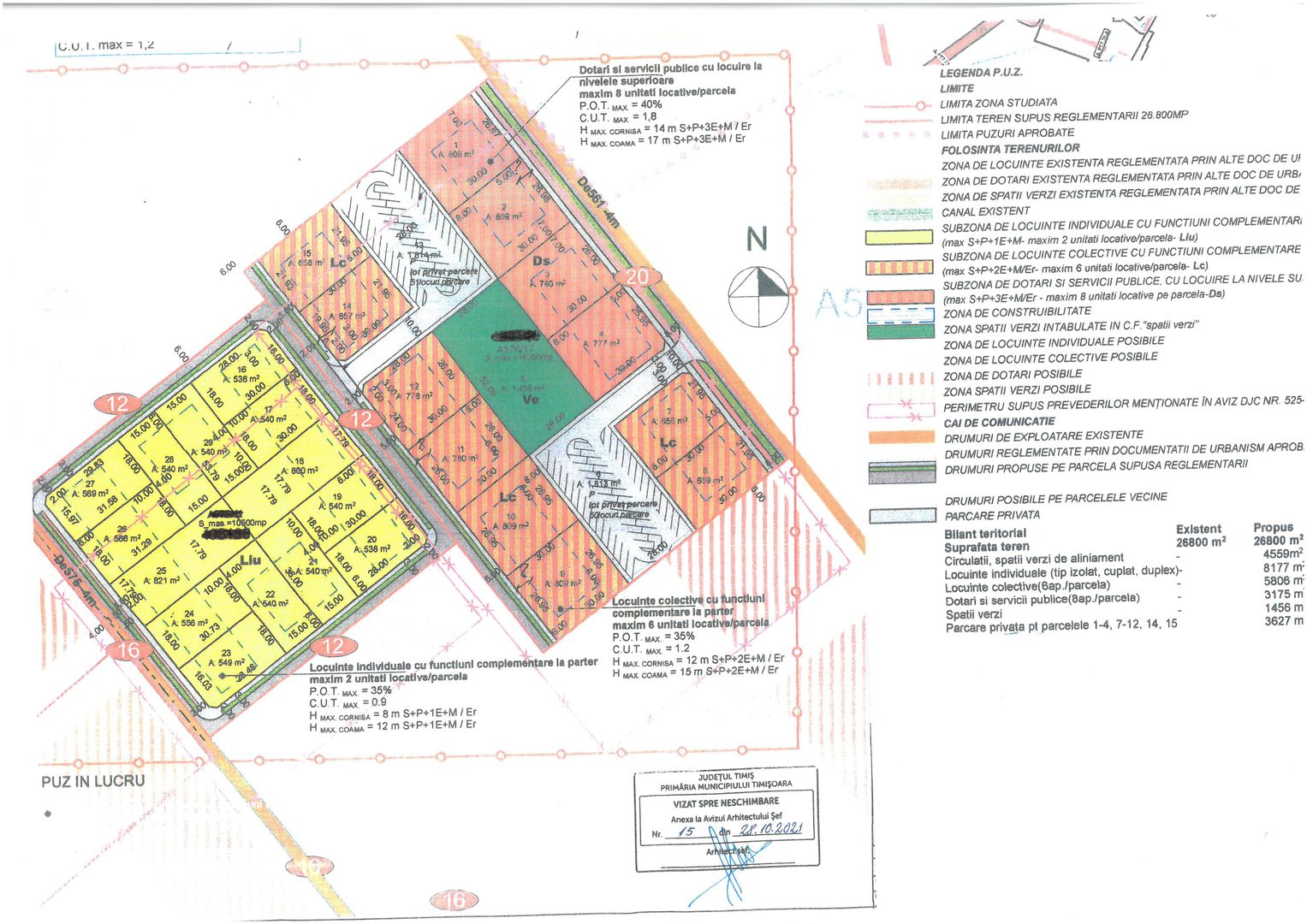
Planul Urbanistic Zonal- zona rezidentiala cu functiuni complementare se afla in Timisoara , zona Mehala si este compus din parcele aprobate pt :

-locuinte individuale (tip izolat, cuplat,duplex ) - 14 parcele -8177 mp,pret 70 euro/mp+TVA

-locuinte colective ( 6 ap / parcela )- 8 parcele -5806 mp, pret 100 euro/mp+TVA

-dotari si servicii publice ( 8 ap/parcela)- 4 parcele -3175 mp, pret 125 euro/mp+TVA

- pt terenurile cu destinație parcare ( 1813mp+1814mp ) pret 70euro/mp +tva si spatii verzi( 1 ) ( 3627 mp și 1456 mp ) 5euro/mp+tva

Pret puz pentr zona de locuinte colective 1250000euro+tva

Pret puz locuinte max. 2 apartamente 572390euro+tva

La momentul actual nu sunt utilități și se dorește vânzarea integrala sau parțială a acestui PUZ.

Citește mai mult

  • Tip teren
    Construcții
  • Suprafață teren
    26,800 mp
  • Front stradal
    150.0 m
  • Număr fronturi stradale
    2
  • Deschidere la
    Drum principal
  • Clasificare
    Intravilan
  • Valoare incidență
    56.28
  • Disponibilitate
    Imediat
  • CUT
    1.2
  • POT (%)
    35.0
  • PUZ Aprobat
    Da

Facilități

Utilități în zonă
Miriana Ionescu - Sodolescu Imobiliare
Miriana Ionescu
Consultant Imobiliar

0728 779 977


Solicită chiar acum o vizionare
Telefon
Sună acum Solicită vizionare
Necesare:

Site-ul nu poate funcționa corect fără aceste cookie-uri. Vezi cookie-urile

Statistică:

Strângem statistici anonime despre voi, vizitatorii unici, pentru a vă îmbunătăți experiența dumneavoastră. Vezi cookie-urile

Marketing:

Pentru a ne promova mai eficient serviciile noastre, folosim cookies pentru a vă identifica și a vă oferi proprietăți și servicii personalizate. Vezi cookie-urile

Acest site folosește cookies, află detalii. Alege ce tipuri de cookies dorești să permitem: