ID CP518609

Teren industrial parcele 5.000 zona HAMILTON-Giarmata

Această proprietate nu mai este activă,
te invităm să vizualizezi proprietăți similare

ID CP518609

255,000 € (negociabil) + 21% TVA

Teren de 5,000 mp de vânzare
Giarmata
5,000 mp

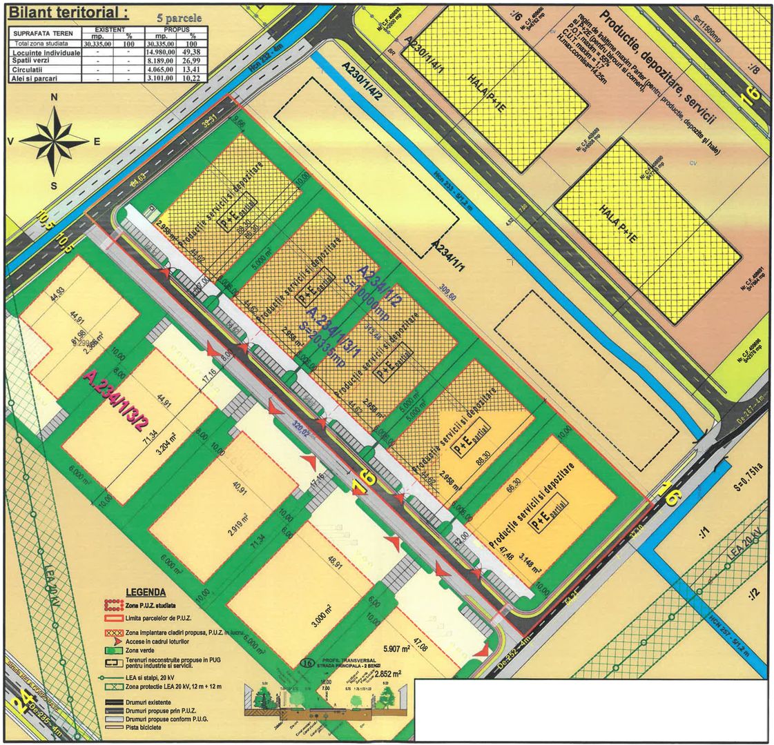
Proprietate imobiliara cu destinatie teren industrial , PUZ zona productie, servicii si depozitare -suprafata totala de 30.300 mp.

Compus din 5 parcele cu cate 5.000 mp fiecare, (o parcela a fost vanduta-6.000mp.)) terenurile de pe colt se poate imparti in doua

Citește mai mult

  • Tip teren
    Construcții
  • Suprafață teren
    5,000 mp
  • Front stradal
    44.0 m
  • Număr fronturi stradale
    1
  • Deschidere la
    Șosea
  • Grad de comasare (%)
    100.0
  • Lățime drum acces
    16.0 m
  • Clasificare
    Extravilan
  • Valoare incidență
    51.0
  • Disponibilitate
    imediat
  • CUT
    1.0
  • POT (%)
    55.0
  • PUZ Aprobat
    Da

Facilități

Acces auto
Iluminat stradal
Oportunitate de investiții
Parcelabil
Studiu Geo
Utilități în zonă
Necesare:

Site-ul nu poate funcționa corect fără aceste cookie-uri. Vezi cookie-urile

Statistică:

Strângem statistici anonime despre voi, vizitatorii unici, pentru a vă îmbunătăți experiența dumneavoastră. Vezi cookie-urile

Marketing:

Pentru a ne promova mai eficient serviciile noastre, folosim cookies pentru a vă identifica și a vă oferi proprietăți și servicii personalizate. Vezi cookie-urile

Acest site folosește cookies, află detalii. Alege ce tipuri de cookies dorești să permitem: