ID CP2913569

Spatiu comercial în Piața Unirii - 155 mp

ID CP2913569

3,875 €

Spațiu comercial de închiriat
P-ta Unirii, Timisoara
155 mp
1948

Spațiu comercial premium disponibil spre închiriere, situat în una dintre cele mai reprezentative zone istorice ale Timișoarei – Piața Unirii. Proprietatea beneficiază de o poziționare excelentă la parterul unei clădiri monument istoric, oferind vizibilitate bună și acces facil pentru clienți și parteneri.

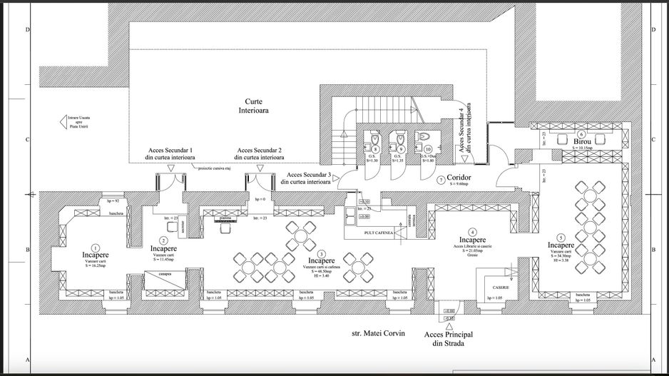
Spațiul dispune de o suprafață utilă de 155 mp și este compartimentat în 6 încăperi, completate de 3 grupuri sanitare și o zona de bar, fiind potrivit pentru desfășurarea unei game variate de activități comerciale sau servicii. Imobilul a fost renovat integral, păstrând elementele arhitecturale specifice clădirilor istorice și integrând, în același timp, dotări moderne care asigură un nivel ridicat de confort și funcționalitate.

Proprietatea este echipată cu sistem de încălzire prin pardoseală, sistem performant de ventilație și aerisire, precum și utilități complete, inclusiv centrală termică, contorizare separată și sistem de alarmă. Spațiul beneficiază de un front stradal generos oferind vizibilitate comercială eficientă.

Datorită configurației și amplasamentului ultracentral, spațiul este ideal pentru activități precum cafenea, restaurant / horeca , reprezentanță de brand sau alte concepte comerciale care valorifică traficul pietonal din zonă.

Proprietatea este disponibilă la cerere pentru ocupare .

Tur virtual

https://view.ricoh360.com/dc35c732-a95b-4889-ad22-41df0593de63/3ca4af6e-9817-4543-96ef-4dac20f587d6

Citește mai mult

  • Tip imobil
    Casă / Vilă
  • Trafic pietonal
    Moderat
  • Etaj
    Parter
  • Număr camere
    6
  • Număr băi
    3
  • Număr bucătării
    1
  • Suprafață construită
    186 mp
  • Suprafață utilă
    155 mp
  • Suprafață teren
    200 mp
  • Front stradal
    20.0 m
  • Vitrină (m)
    10.0 m
  • Disponibilitate
    Imediat
  • An construcție
    1948
  • Număr etaje clădire
    1
  • Monument Istoric
    Da

Facilități

Apă
Canalizare
Centrală termică
Contorizare separată
Curent
Gaz
Grupuri sanitare amenajate și utilate
Sistem de alarmă
Sistem de ventilație
Valentin SODOLESCU - Sodolescu Imobiliare
Valentin SODOLESCU
Coordonator Marketing

0733 772 277


Solicită chiar acum o vizionare
Telefon
Sună acum Solicită vizionare
Necesare:

Site-ul nu poate funcționa corect fără aceste cookie-uri. Vezi cookie-urile

Statistică:

Strângem statistici anonime despre voi, vizitatorii unici, pentru a vă îmbunătăți experiența dumneavoastră. Vezi cookie-urile

Marketing:

Pentru a ne promova mai eficient serviciile noastre, folosim cookies pentru a vă identifica și a vă oferi proprietăți și servicii personalizate. Vezi cookie-urile

Acest site folosește cookies, află detalii. Alege ce tipuri de cookies dorești să permitem: