ID CP144184

Spatiu depozitare/productie 500 mp, zona Sud

ID CP144184

2,500 € + 21% TVA

Spațiu industrial de închiriat
Sagului, Timisoara
500 mp
2024

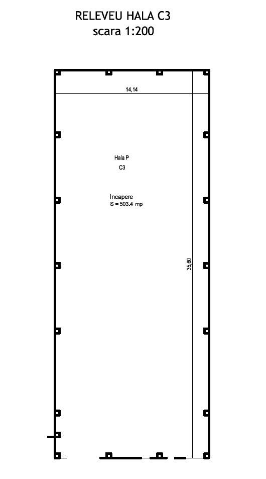
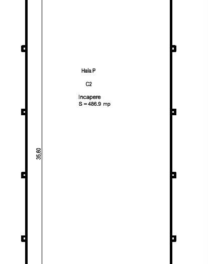
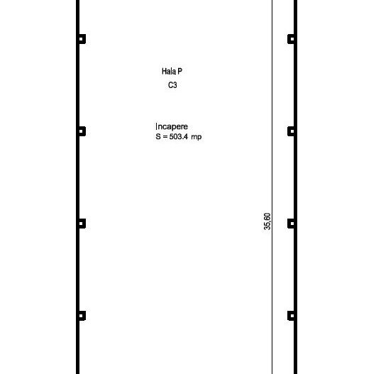
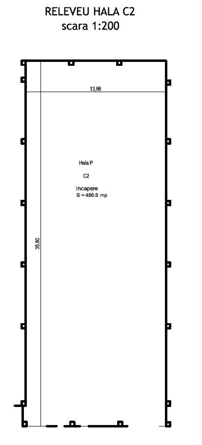
Spatiul este situat intr-un ansamblu industrial, an constructie 2024,avand o suprafata utila de 500 mp.

Regimul de inaltime este 8 ml, respectiv 9 ml, in punctul cel mai inalt.

Spatiul dispune de toate utilitatile, curent, curent trifazic, putere instalata 185 KW, foraj propriu la 180 m adancime.

Hala are avize PSI periodice, corespunde normelor internationale.

Mentenanta 1,0 euro/mp se adauga la pretul de inchiriere si include :

a). curăţenia şi întreţinerea zonelor comune şi a drumurilor de acces în interiorul şi exteriorul clădirilor – peisagistică, parcare, zonele de circulaţie, curăţarea zăpezii;

b) utilizarea şi întreţinerea sistemului de canalizare, statie de epurare, PSI, colectarea gunoiului;

Utilitatile se achita separat , pe baza citirii consumurilor;

c) serviciul de securitate si monitorizarea video a proprietăţii

iar pretul final de inchiriere este de 6 euro/mp+TVA + valoarea utilitatilor;

Avem in corpul administrativ de inchiriat 2 birouri (75 +40 mp) cu grupuri sanitare la pretul de 6 euro +TVA

Perioada minima de inchiriere este 12 luni, garantia este contravaloare a 3 luni de chirie.

Citește mai mult

  • Tip imobil
    Hală
  • Etaj
    Parter
  • Clasă birouri
    A
  • Număr camere
    1
  • Număr băi
    3
  • An construcție
    2024
  • Construcție nouă
    Da
  • Număr locuri parcare
    3
  • Suprafață construită
    600 mp
  • Suprafață utilă
    500 mp
  • Suprafață totală birouri
    50 mp
  • Suprafață depozitare
    1,450 mp
  • Suprafață teren
    600 mp
  • Dimensiuni uși intrare
    3x3
  • Înălțime interioară
    9.0
  • Disponibilitate
    01.08.2025
  • Compartimentare spațiu
    Flexibil

Facilități

Acces auto
Acces TIR
Apă
Canalizare
Curent
Curent trifazic (380V)
Gaz
Iluminat stradal
Mijloace de transport în comun
Străzi asfaltate
Teren împrejmuit
Uși de acces
Claudiu Nitu - Sodolescu Imobiliare
Claudiu Nitu
Consultant Imobiliar

0732 999 994


Solicită chiar acum o vizionare
Telefon
Sună acum Solicită vizionare
Necesare:

Site-ul nu poate funcționa corect fără aceste cookie-uri. Vezi cookie-urile

Statistică:

Strângem statistici anonime despre voi, vizitatorii unici, pentru a vă îmbunătăți experiența dumneavoastră. Vezi cookie-urile

Marketing:

Pentru a ne promova mai eficient serviciile noastre, folosim cookies pentru a vă identifica și a vă oferi proprietăți și servicii personalizate. Vezi cookie-urile

Acest site folosește cookies, află detalii. Alege ce tipuri de cookies dorești să permitem: