ID CP1980542

Pretabila pentru azil de batrani,clinica,gradinita

ID CP1980542

350,000 €

Casă / Vilă cu 6 camere de vânzare
Mehala, Timisoara
190 mp
2006

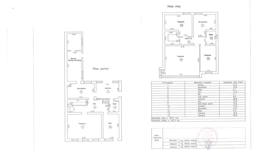
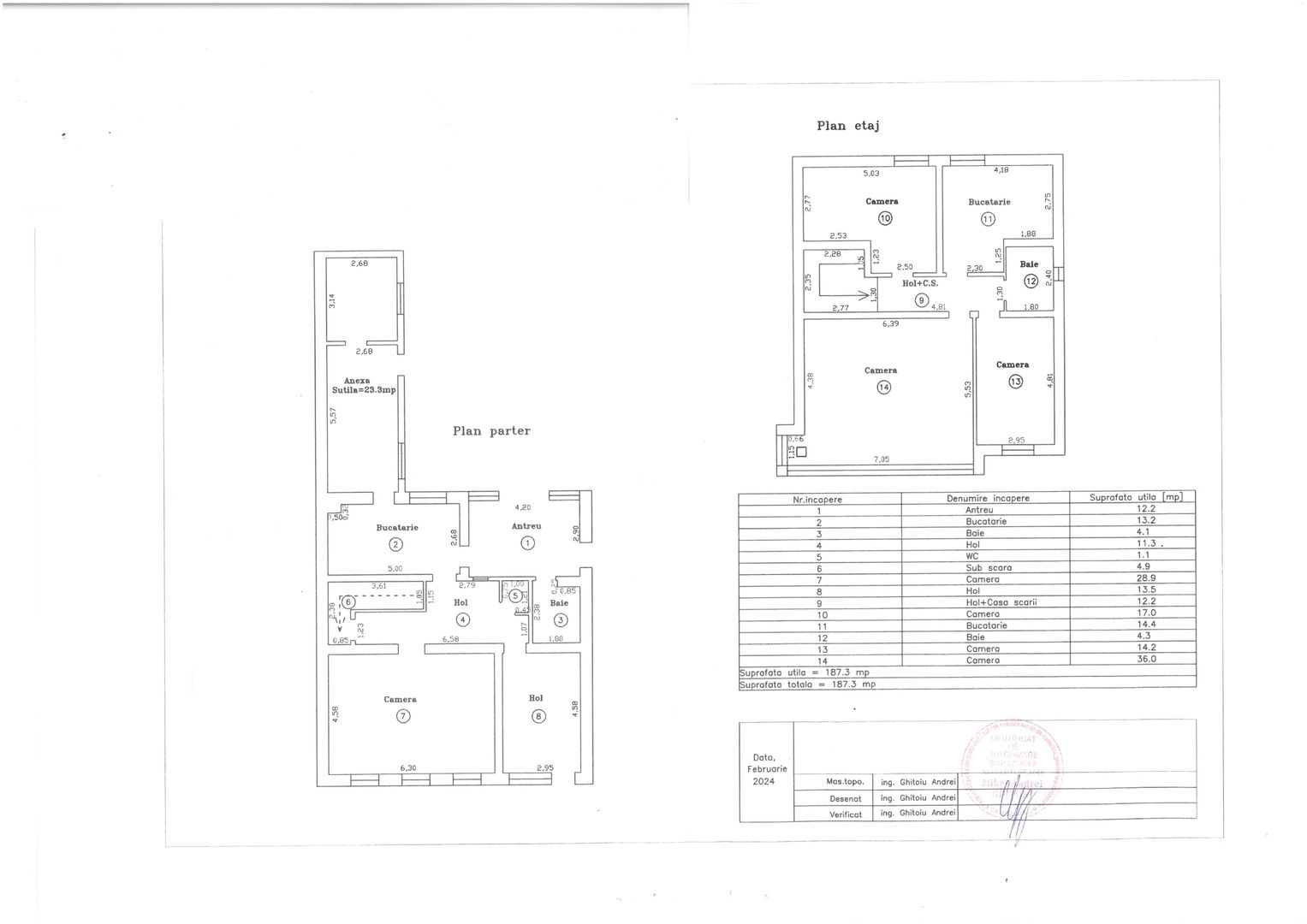
De vanzare casa in apropiere de Biserica din Mehala ,avand tipologia P+1Ein suprafata utila de 190 mp si teren de 250 mp avand urmatoarea compartimentare:

-Parter

-camera cu intrare din strada

-living spatios

-doua holuri

-baie

-camera 1

-camera 2

-bucatarie

-terasa inchisa

-Etaj

-hol

-trei camere

-bucatarie

-baie

Casa a fost construita in anul 2006,este din caramida si izolata cu polistiren,incalzirea este cu centrala proprie pe gaz,are intrare si din strada,alarma,camere video si patru locuri de parcare in fata imobilului.

Citește mai mult

  • Număr camere
    6
  • Număr bucătării
    2
  • Număr băi
    3
  • Geam la baie
    Da
  • Număr terase
    1
  • Număr locuri parcare
    4
  • Disponibilitate
    Imediat
  • Tip casă
    Individual
  • Stare interior
    Bună
  • Suprafață utilă
    190 mp
  • Suprafață construită
    230 mp
  • Suprafață teren
    260 mp
  • Acoperiș
    Țiglă
  • Stadiu construcție
    Finalizată
  • An construcție
    2006
  • Construcție nouă
    Da
  • Tip construcție
    Cărămidă
  • Număr etaje clădire
    1

Facilități

Acoperiș
Aer condiționat
Apă
Cabină de duș
Cadă
Calorifere
Canalizare
CATV
Centrală proprie
Curent
Curte
Debara
Faianță
Ferestre PVC
Gaz
Geamuri termopan
Iluminat stradal
Interfon
Internet
Izolație exterioară
Mijloace de transport în comun
Parchet
Străzi asfaltate
Telefon
Ușă intrare PVC
Uși interior celulare
Vopsea lavabilă
WC Serviciu
Daniela LASC - Sodolescu Imobiliare
Daniela LASC
Consultant Imobiliar

0744 776 077


Solicită chiar acum o vizionare
Telefon
Sună acum Solicită vizionare
Necesare:

Site-ul nu poate funcționa corect fără aceste cookie-uri. Vezi cookie-urile

Statistică:

Strângem statistici anonime despre voi, vizitatorii unici, pentru a vă îmbunătăți experiența dumneavoastră. Vezi cookie-urile

Marketing:

Pentru a ne promova mai eficient serviciile noastre, folosim cookies pentru a vă identifica și a vă oferi proprietăți și servicii personalizate. Vezi cookie-urile

Acest site folosește cookies, află detalii. Alege ce tipuri de cookies dorești să permitem: