ID CP1800475

DUPLEX CERNETEAZ 140 MP UTILI + TEREN 570 MP

ID CP1800475

160,000 €

Casă / Vilă cu 4 camere de vânzare
Cerneteaz
140 mp
2023

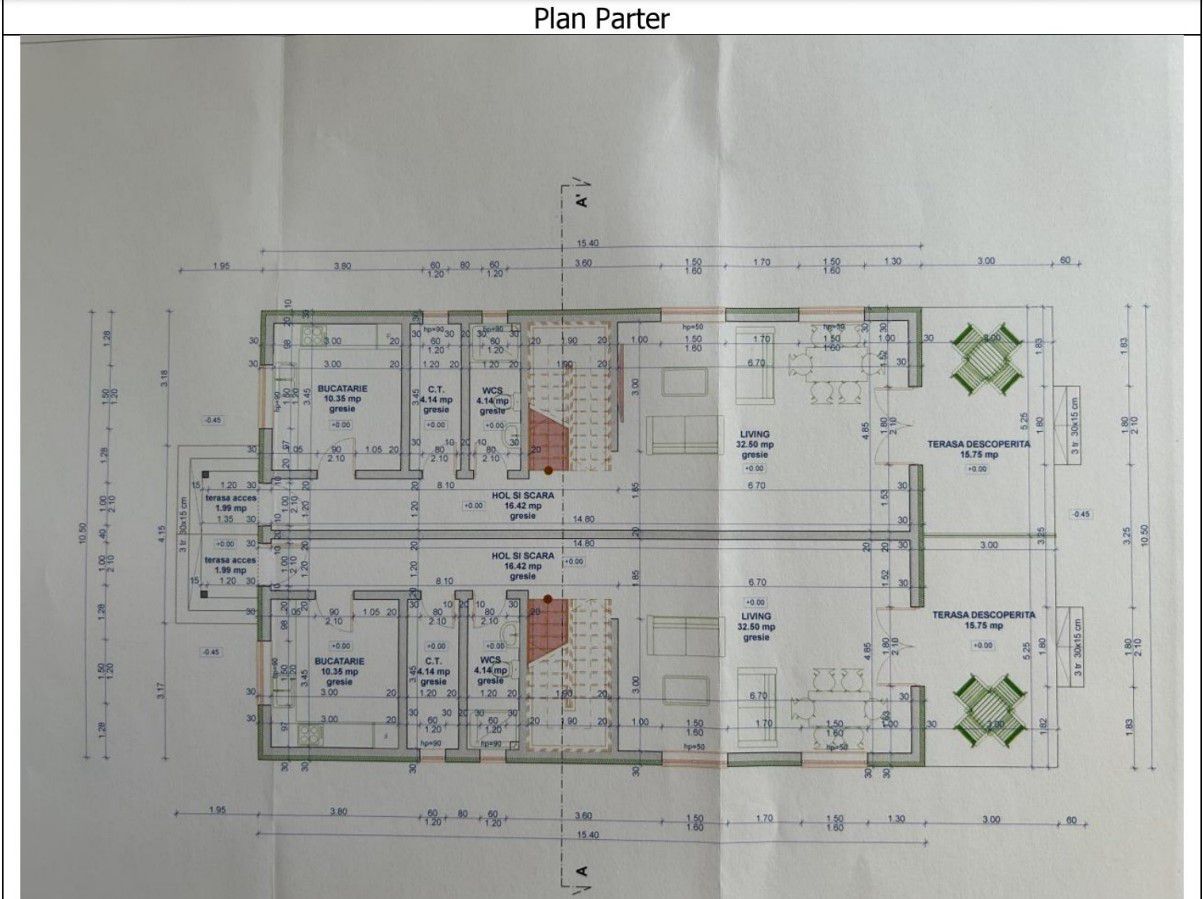
Duplex P +1E la Cerneteaz avand un spatiu util -170mp (parter-67.55, etaj-67.17, pod-38.3, terase-17.74) si urmatoarea compartimentare :

-parter : hol acces , bucatarie inchisa , baie , camera tehnica , living spatios cu iesire pe terasa

-etaj: 3 dormitoare si o baie

Imobilul se afla intr-o zona foarte linistita , cu acces la strada asfaltata , statie de autobuz la 150m,

loc de joaca pentru copii la 200 m , teren de fotbal , izvor cu apa potabila.

Din Cerneteaz sunt 13 km pana in centrul orasului, 7 minute pana la

Centrele comerciale Kaufland, Mega Image, Lidl, Profi, la numai 15 min de Iulius Mall, este

trotuar si drum de biciclete dedicat din sat pana la drumul spre Timisoara, la 6 minute de

autostrada A1, la 10 minute de Aeroport.

Casa este construita de o echipa cu peste 15 ani experienta in constructia de case in Canada , pe structura de lemn KVH de la Technica Schweiz, izolata pe exterior cu vata bazaltica de 10cm si 15 cm vata minerala pe interior ceea ce ii confera un confort termic ridicat.

Imobilul se vinde la cheie cu parchet, gresie, usi interioare exterioare, geamuri termopan, obiecte sanitare si corpuri de iluminat. Locuinta se poate personaliza in limita bugetului alocat anterior (exemplu: culoare pereti interiori, gresie, faianta, parchet laminat, corpuri de iluminat) in cazul unor finisaje ultra se aduga diferenta de cost .

Termen de finalizare luna decembrie 2023.

Citește mai mult

  • Număr camere
    4
  • Dormitoare
    3
  • Număr bucătării
    1
  • Număr băi
    2
  • Geam la baie
    Da
  • Număr terase
    1
  • Disponibilitate
    2023
  • Tip casă
    Duplex
  • Stare interior
    Finisat modern
  • Anul finisării
    2024
  • Suprafață utilă
    140 mp
  • Suprafață construită
    163 mp
  • Suprafață teren
    570 mp
  • Acoperiș
    Tablă
  • Stadiu construcție
    Finalizată
  • An construcție
    2023
  • Construcție nouă
    Da
  • Tip construcție
    Cărămidă
  • Are mansardă
    Da

Facilități

Apă
CATV
Curent trifazic (380V)
Curte comună
Faianță
Fosă septică
Geamuri tripan
Gresie
Iluminat stradal
Internet
Parchet
Scară interioară
Străzi asfaltate
Telefon
Termoficare
Ușă intrare metal
Uși interior MDF
Dana Palioca
Consultant Imobiliar

0732 772 277


Solicită chiar acum o vizionare
Telefon
Sună acum Solicită vizionare
Necesare:

Site-ul nu poate funcționa corect fără aceste cookie-uri. Vezi cookie-urile

Statistică:

Strângem statistici anonime despre voi, vizitatorii unici, pentru a vă îmbunătăți experiența dumneavoastră. Vezi cookie-urile

Marketing:

Pentru a ne promova mai eficient serviciile noastre, folosim cookies pentru a vă identifica și a vă oferi proprietăți și servicii personalizate. Vezi cookie-urile

Acest site folosește cookies, află detalii. Alege ce tipuri de cookies dorești să permitem: