ID CP2200086

Renovat in zona Sagului

Această proprietate nu mai este activă,
te invităm să vizualizezi proprietăți similare

ID CP2200086

58,000 €

Apartament cu 2 camere de vânzare
Sagului, Timisoara
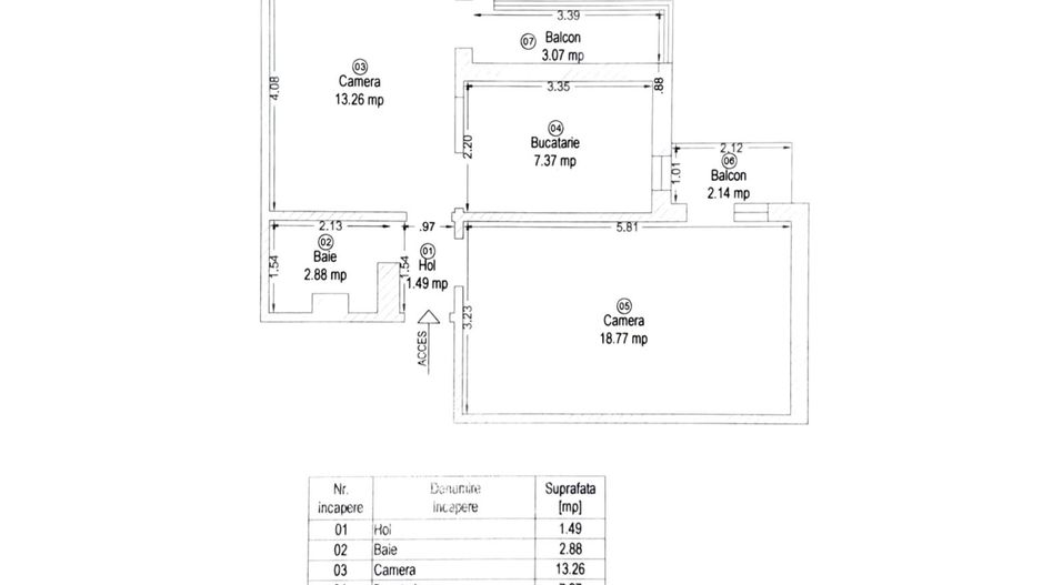
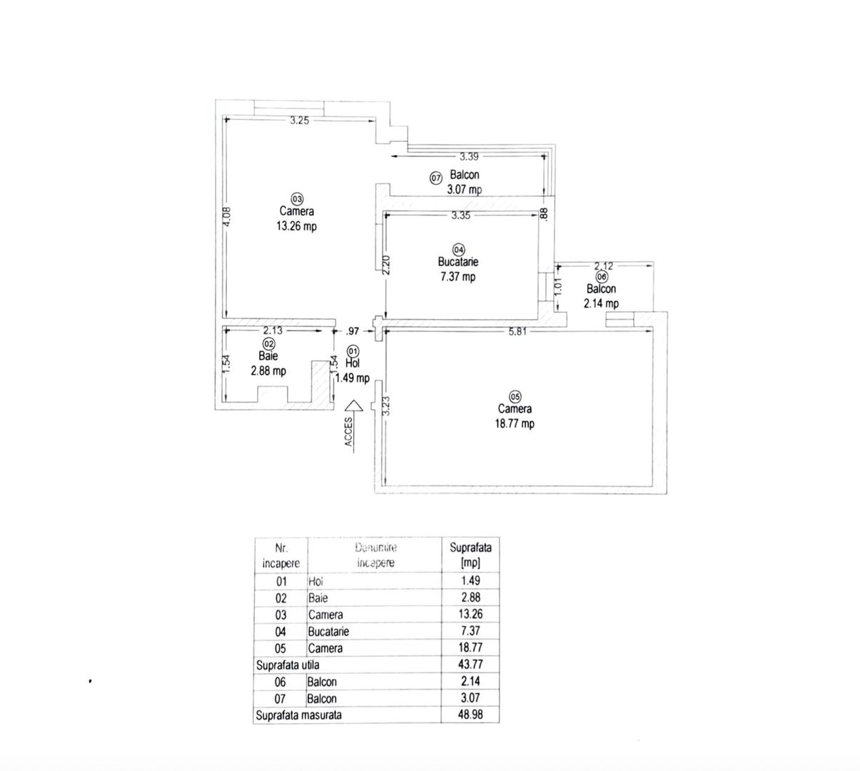
48 mp
1970

Apartamentul este situat in zona Sagului la etajul 2 si este complet renovat.Are centrala proprie si 2 balcoane .

Au fost aduse renovari si modificari in tot apartamentul,totul fiind nou.

Este situat in apropiere de Glisando si benzinaria Petrom

Citește mai mult

  • Tip apartament
    Apartament
  • Compartimentare
    Semidecomandat
  • Număr camere
    2
  • Număr bucătării
    1
  • Număr băi
    1
  • Etaj
    2
  • Suprafață utilă
    48 mp
  • Suprafață construită
    57 mp
  • Disponibilitate
    Imediat
  • Confort
    1
  • Stare interior
    Renovat
  • Număr balcoane
    2
  • Imobil
    Bloc de apart.
  • Stadiu construcție
    Finalizată
  • An construcție
    1970
  • Tip construcție
    Cărămidă
  • Număr etaje clădire
    4

Facilități

Apă
Apometre
Cadă
Calorifere
Canalizare
CATV
Centrală proprie
Contor electric
Contor gaz
Curent
Curte comună
Faianță
Ferestre PVC
Gaz
Geamuri termopan
Iluminat stradal
Interfon
Mijloace de transport în comun
Nemobilat
Parchet laminat
Străzi asfaltate
Ușă intrare PVC
Uși interior PVC
Vopsea lavabilă
Necesare:

Site-ul nu poate funcționa corect fără aceste cookie-uri. Vezi cookie-urile

Statistică:

Strângem statistici anonime despre voi, vizitatorii unici, pentru a vă îmbunătăți experiența dumneavoastră. Vezi cookie-urile

Marketing:

Pentru a ne promova mai eficient serviciile noastre, folosim cookies pentru a vă identifica și a vă oferi proprietăți și servicii personalizate. Vezi cookie-urile

Acest site folosește cookies, află detalii. Alege ce tipuri de cookies dorești să permitem: