ID CP1937559

Vila individuala în constructie 2024

Această proprietate nu mai este activă,
te invităm să vizualizezi proprietăți similare

ID CP1937559

259,900 €

Casă / Vilă cu 4 camere de vânzare
Ghirodei, Timisoara
140 mp
2024

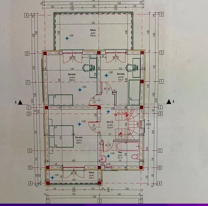
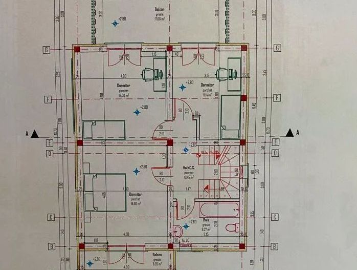
Vila este un proiect deosebit,avand tipologia P+!+Pod,fiind compartimentata astfel:

Parter-Living,bucatarie,baie de serviciu, garaj,spatiu tehnic depozitare, terasa acoperită 20mp;

Etaj-sunt 3 dormitoare toate cu ieșire pe terasa, hol baie cu cada;

Pod-depozitare cu acces

Imobilul se preda la stadiul de Alb la prețul de 259900 eur

Citește mai mult

  • Număr camere
    4
  • Număr bucătării
    1
  • Număr băi
    2
  • Număr balcoane
    3
  • Număr terase
    1
  • Disponibilitate
    Imediat
  • Tip casă
    Individual
  • Suprafață utilă
    140 mp
  • Suprafață construită
    180 mp
  • Suprafață teren
    700 mp
  • An construcție
    2024
  • Construcție nouă
    Da
  • Tip construcție
    Cărămidă
  • Număr etaje clădire
    1
  • Are pod
    Da

Facilități

Apă
Apometre
Bucătărie deschisă
Cabină de duș
Cadă
Canalizare
CATV
Centrală proprie
Contor electric
Contor gaz
Curent
Curte
Debara
Gaz
Iluminat stradal
Încălzire prin pardoseală
Internet
Izolație exterioară
Mijloace de transport în comun
Nemobilat
Parcare acoperită
Străzi asfaltate
Telefon
Ușă intrare metal
Vopsea lavabilă
Necesare:

Site-ul nu poate funcționa corect fără aceste cookie-uri. Vezi cookie-urile

Statistică:

Strângem statistici anonime despre voi, vizitatorii unici, pentru a vă îmbunătăți experiența dumneavoastră. Vezi cookie-urile

Marketing:

Pentru a ne promova mai eficient serviciile noastre, folosim cookies pentru a vă identifica și a vă oferi proprietăți și servicii personalizate. Vezi cookie-urile

Acest site folosește cookies, află detalii. Alege ce tipuri de cookies dorești să permitem: