ID CP2293063

Individuala cu piscina

Această proprietate nu mai este activă,
te invităm să vizualizezi proprietăți similare

ID CP2293063

179,000 € (negociabil)

Casă / Vilă cu 3 camere de vânzare
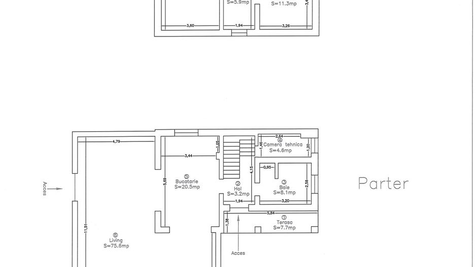
Sacalaz
161 mp
2008

Imobilul este situat aproape de centru,compusa din P+M ,din caramida si acoperis de tigla.

Este compusa astfel; Parter : -living cu bucatarie open space,jacuzzi,camera tehnica,baia cu vana

Mansarda: -2 dormitoare,1 baie cu dus

In curtea interioara se afla piscina.

Accesul auto este automatizat,in curte.

-

Citește mai mult

  • Număr camere
    3
  • Număr bucătării
    1
  • Număr băi
    2
  • Număr locuri parcare
    3
  • Disponibilitate
    Imediat
  • Tip casă
    Individual
  • Stare interior
    Finisat clasic
  • Suprafață utilă
    161 mp
  • Suprafață construită
    193 mp
  • Suprafață teren
    616 mp
  • Acoperiș
    Țiglă
  • Stadiu construcție
    Finalizată
  • An construcție
    2008
  • Construcție nouă
    Da
  • Tip construcție
    Cărămidă
  • Are mansardă
    Da

Facilități

Acoperiș
Aer condiționat
Apă
Apometre
Bucătărie deschisă
Bucătărie parțial utilată
Cabină de duș
Cadă
Calorifere
Canalizare
CATV
Centrală proprie
Contor gaz
Curent
Curte
Faianță
Ferestre PVC
Frigider
Gaz
Geamuri termopan
Hotă
Iluminat stradal
Izolație exterioară
Mașină de spălat vase
Mijloace de transport în comun
Mobilat parțial
Parcare acoperită
Parchet laminat
Piscină exterioară
Saună
Străzi asfaltate
Telecomandă poartă acces auto
Ușă intrare PVC
Uși interior PVC
Vopsea lavabilă
WC Serviciu
Necesare:

Site-ul nu poate funcționa corect fără aceste cookie-uri. Vezi cookie-urile

Statistică:

Strângem statistici anonime despre voi, vizitatorii unici, pentru a vă îmbunătăți experiența dumneavoastră. Vezi cookie-urile

Marketing:

Pentru a ne promova mai eficient serviciile noastre, folosim cookies pentru a vă identifica și a vă oferi proprietăți și servicii personalizate. Vezi cookie-urile

Acest site folosește cookies, află detalii. Alege ce tipuri de cookies dorești să permitem: