Ansamblu rezidențial - Ravelresidence

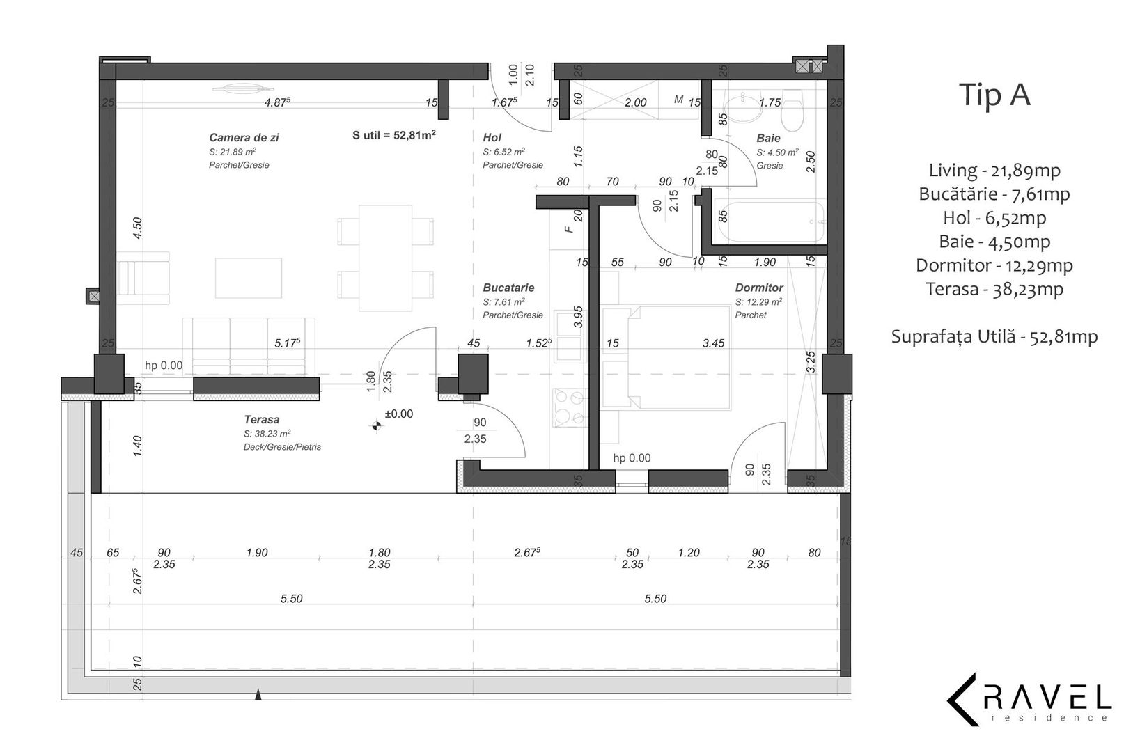
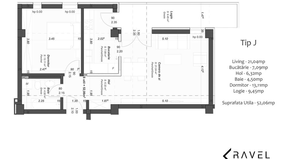
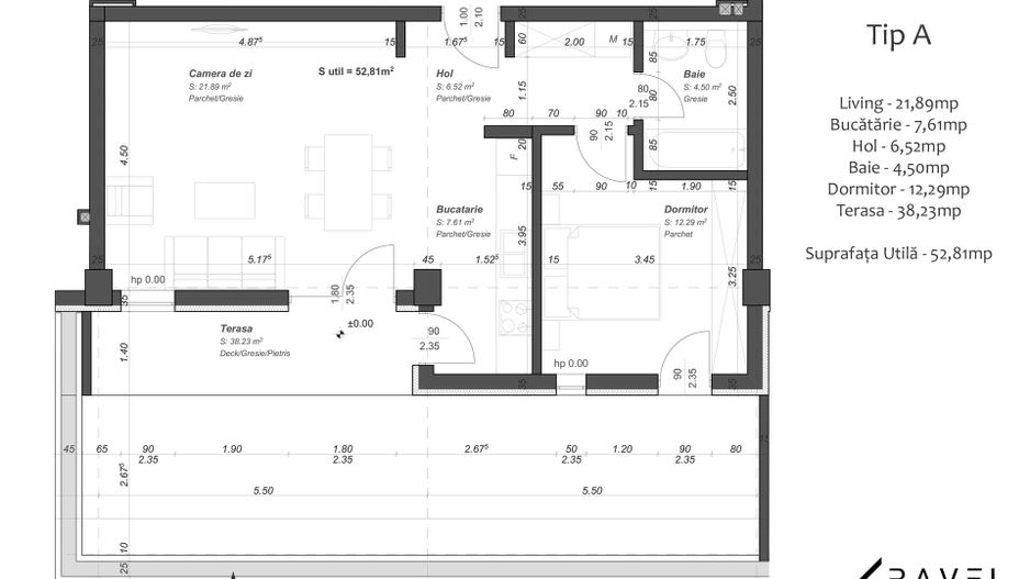
3 camere
70 mp
Aradului
  • Imobil
    Bloc de apart.
  • Tip construcție
    Cărămidă
  • Stadiu construcție
    În construcție
  • An construcție
    2020

Descriere

Ravelresidence s-a nascut din pasiunea pentru calitate, frumos si lucrul bine facut, de la nevoia primara a unui spatiu de locuit pana la dorinta de expresie a valorilor premium in tot ceea ce ne inconjoara, conturand un stil de viata.

Acesta reprezinta un concept care depaseste granitele unui simplu proiect imobiliar propunand inainte de toate un stil de a fi. Este marca cu cea mai rapida ascensiune, din gama premium, de pe piata de real estate din Timisoara. Exigenta cu care abordam fiecare aspect al unei cladiri a atras interesul celor mai selectivi clienti.

Cunostintele noastre atat tehnice, cat si vizionare, pun bazele pentru urmatoarea generatie de locatii. Noi cream locuri pentru ca oamenii sa rada, sa se bucure, sa sarbatoreasca si sa aiba parte de trairi unice. Noi cream experiente care amplifica bucuria simtita in momentele impartasite cu cei dragi.

Citește mai mult

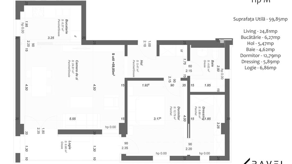
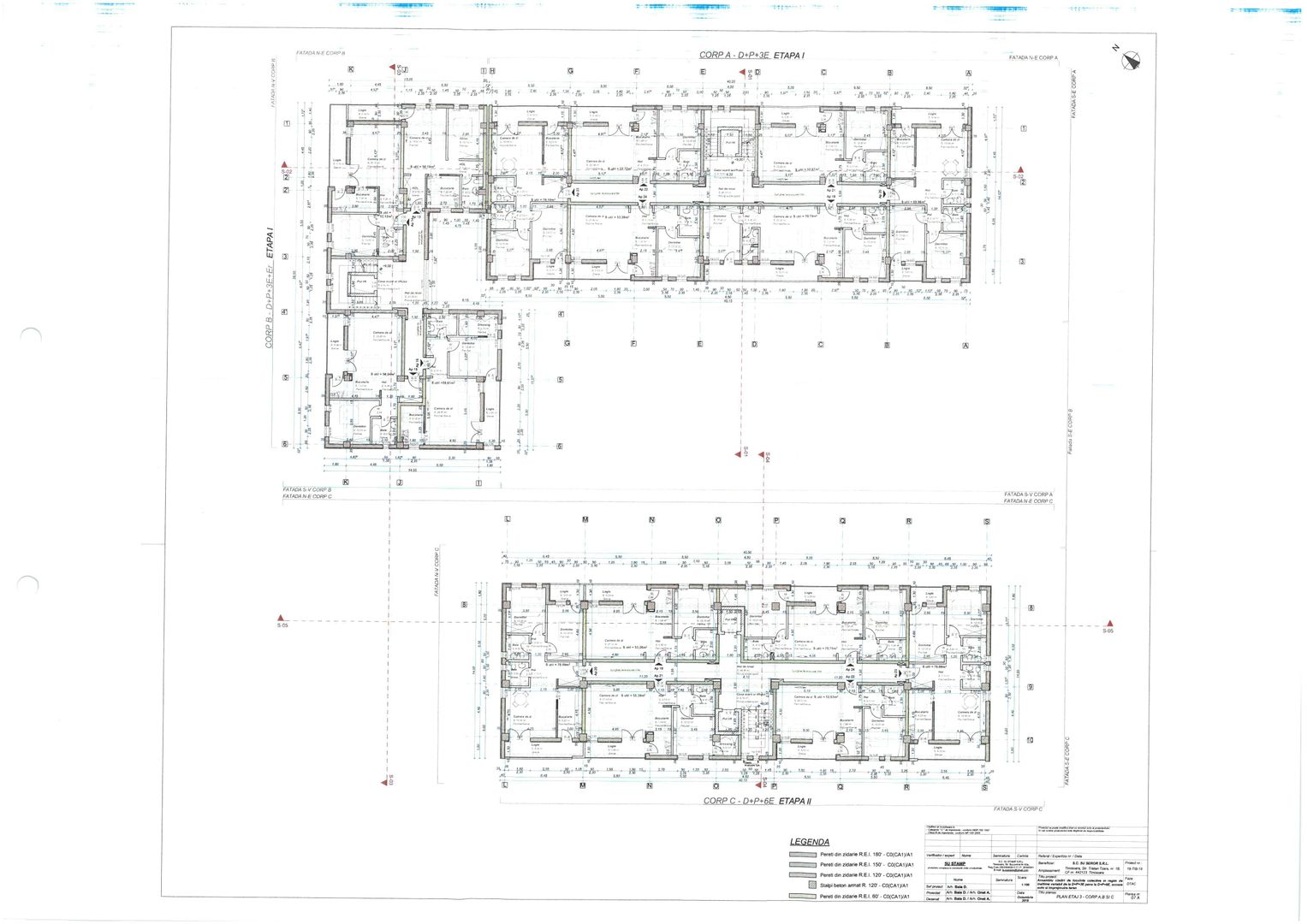
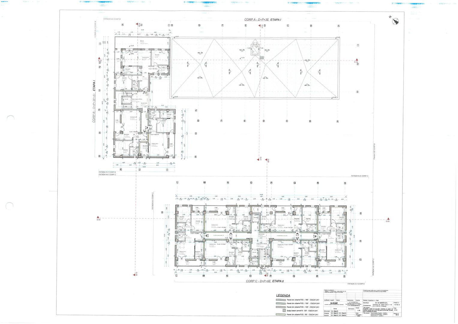
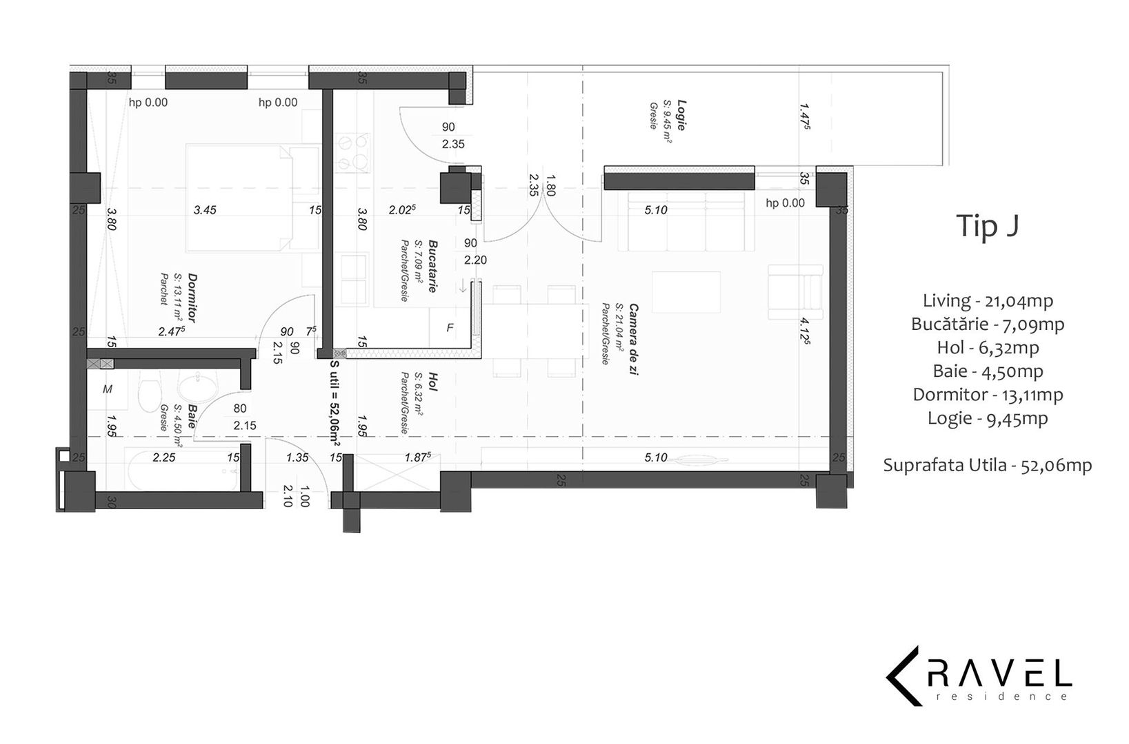
Detalii tehnice

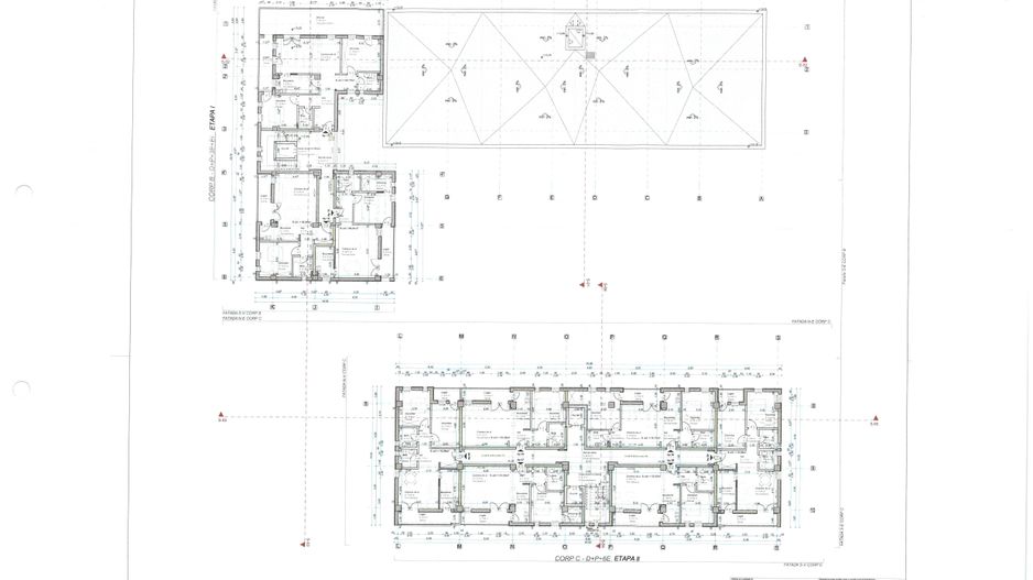
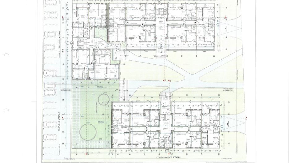
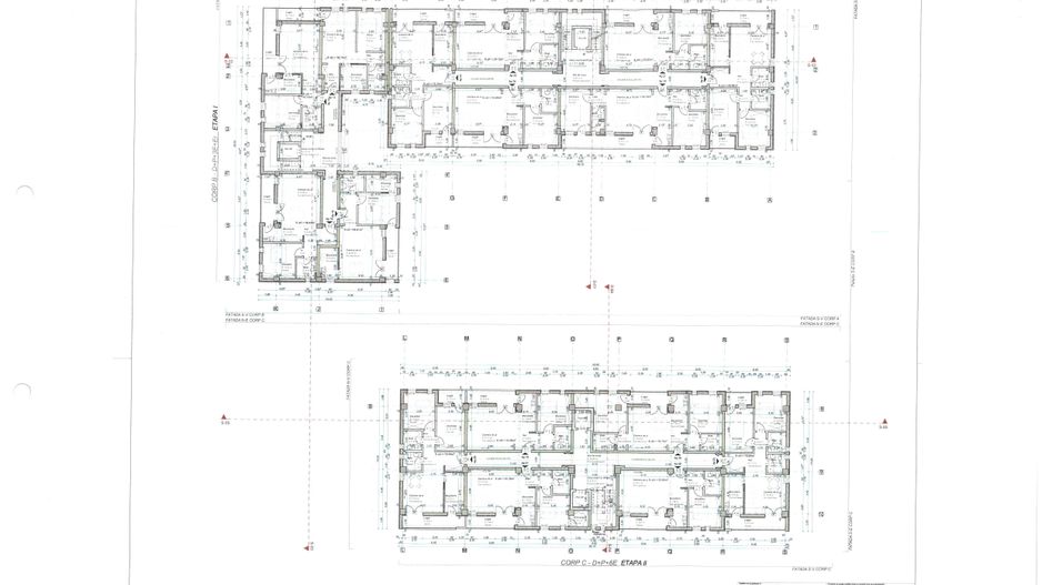
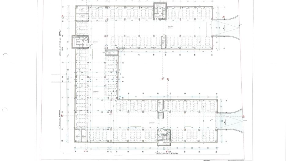
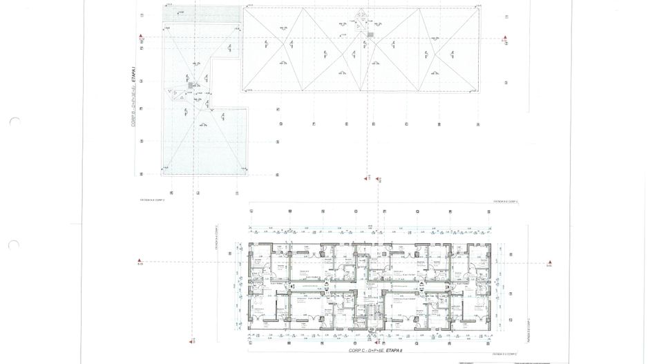
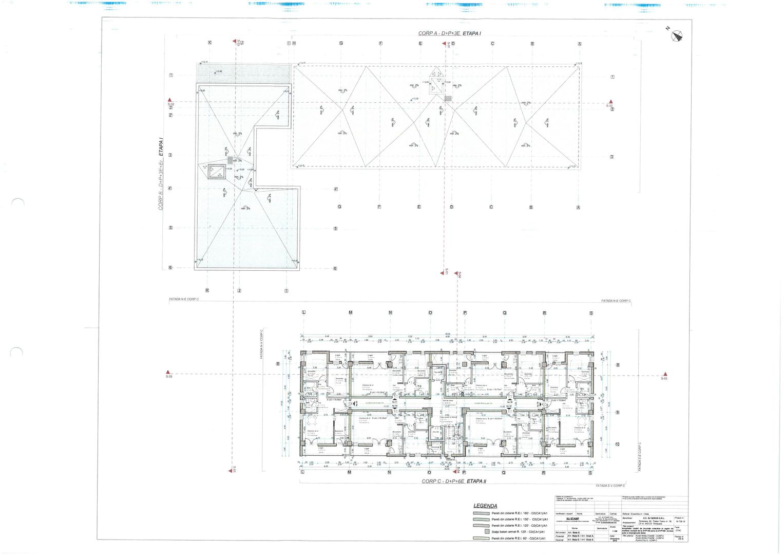
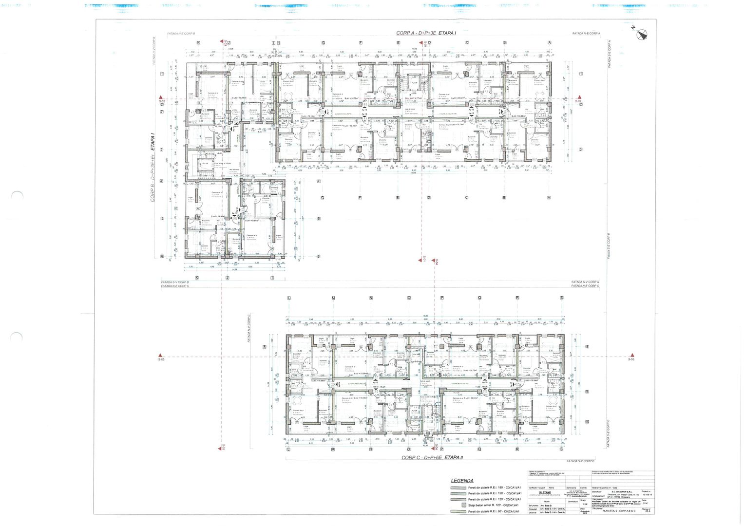
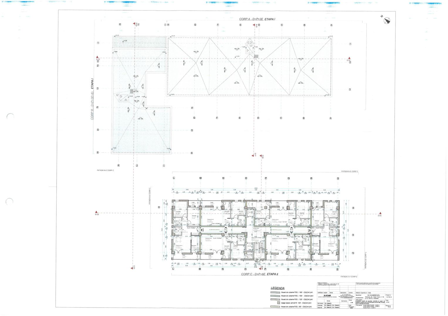
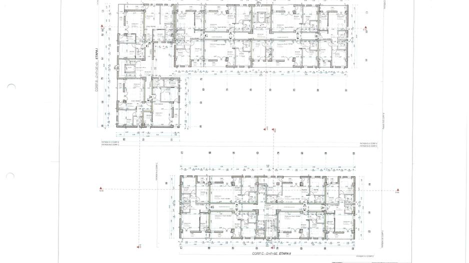
Ansamblul cuprinde 3 corpuri A,B si C cu nivel de inaltime S+P+ 3E pentru corpul A, S+P+3E+Er pentru corpul B si S+P+6E pentru corpul C.

-85 unitati locative premium

-72 locuri de parcare subterane

-26 locuri de parcare supraterane

Termen de finalizare Decembrie 2020 pentru corpurile A si B si Martie 2021 pentru corpul C.

Citește mai mult

Finisaje

Finisaje interioare sunt la alegerea clientului.

-tamplarie PVC Veka 3 sticle - alb interior antracit exterior;

-parchet Krono swiss 10-12mm;

-ceramica premium BALDOCER;

-centrala Bosch Condens 2200;

-incalzire pardosea pxa de la Tece germania cu distribuitoare inox;

-aer conditionat INVENTOR

-usi intrare MEGADOOR

-usi interior PORTA DOORS

-usi culisante incastrat: la cerere pentru bucatarii inchise;

-balustrazi parapeti din beton si inox satimat;

-lifturi silentioase Orona 3G;

-sanitare Ideal Standard;

-baterii GROHE;

-acces securizat parcari;

Citește mai mult

Daniel SODOLESCU
Office Manager

0731 100 100


Solicită chiar acum o vizionare
Telefon
Sună acum Solicită vizionare
Necesare:

Site-ul nu poate funcționa corect fără aceste cookie-uri. Vezi cookie-urile

Statistică:

Strângem statistici anonime despre voi, vizitatorii unici, pentru a vă îmbunătăți experiența dumneavoastră. Vezi cookie-urile

Marketing:

Pentru a ne promova mai eficient serviciile noastre, folosim cookies pentru a vă identifica și a vă oferi proprietăți și servicii personalizate. Vezi cookie-urile

Acest site folosește cookies, află detalii. Alege ce tipuri de cookies dorești să permitem: